















































김수빈
Soobin Kim
박예지
Yeji Park
이윤정
Yunjeong Lee
3dbite
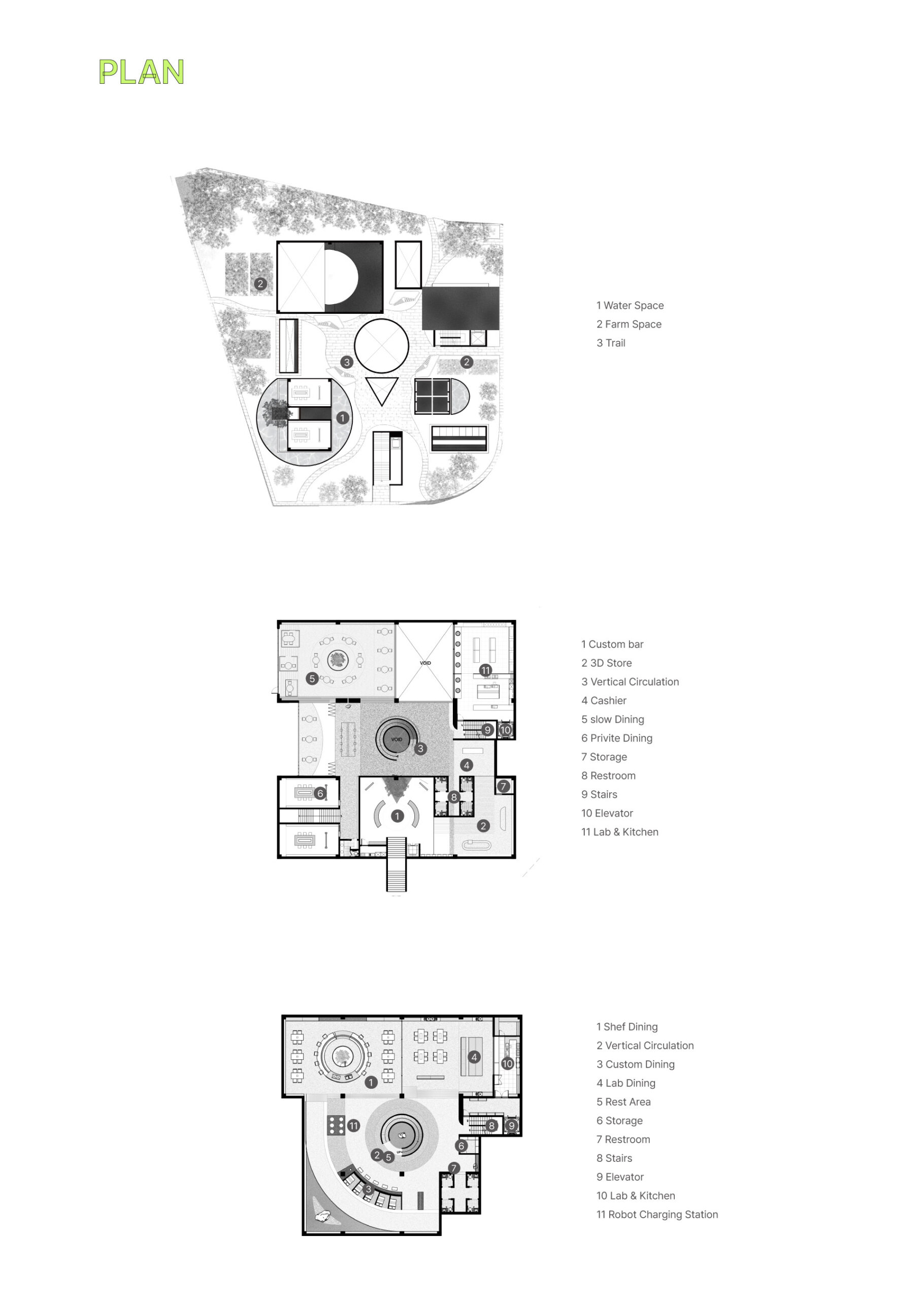
우리 레스토랑은 식경험을 통해 미래를 상상케 합니다. 빠르게 흘러가는 ‘현재’의 성수에서 자연, 음식, 요리와 같이 과거부터 지금까지 늘 있던 것과 기술,시간,과학과 같이 걷잡을 수 없이 빠르게 발전하고 있는 것. 그들의 관계에 대해 새삼스레 사색해보고, 가슴뛰는 기대감도 품을 수 있는 공간이 되기를 바랍니다.
3dbite Lab invites people to imagine the future through a dining experience. In the fast-paced present of Seongsu, we want this space to be a place to reflect on the relationship between the two ; Things that have always been there, like nature, food, and cooking. Things that are moving at an unstoppable pace, like technology, time, and science. and to get excited about it.
info
우리 레스토랑은 식경험을 통해 미래를 상상케 합니다. 빠르게 흘러가는 ‘현재’의 성수에서 자연, 음식, 요리와 같이 과거부터 지금까지 늘 있던 것과 기술,시간,과학과 같이 걷잡을 수 없이 빠르게 발전하고 있는 것. 그들의 관계에 대해 새삼스레 사색해보고, 가슴뛰는 기대감도 품을 수 있는 공간이 되기를 바랍니다.
3dbite Lab invites people to imagine the future through a dining experience. In the fast-paced present of Seongsu, we want this space to be a place to reflect on the relationship between the two ; Things that have always been there, like nature, food, and cooking. Things that are moving at an unstoppable pace, like technology, time, and science. and to get excited about it.














































