





















































김수정
Sujung Kim
전은정
Eunjeong Jeon
F.I.T – Future Innovative Transition
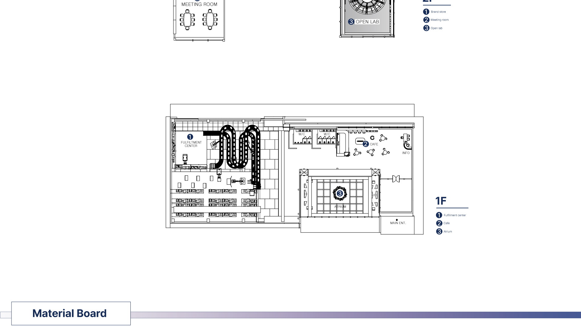
F.I.T (Future Innovative Transition)은 물류 4.0 시대의 흐름에 맞춰 탄생한 도심형 물류센터입니다. 유휴공간이던 한남오거리 폐주유소를 활용해 물류량 증가와 교통 혼잡 문제를 해결하며, 스마트 모빌리티와 자동화 시스템을 통해 운영 효율을 극대화하고, 필요한 물품을 더욱 신속하고 정확하게 배송합니다. 도심의 유휴 공간을 미래형 물류 거점으로 변모시키며, 새로운 도시 물류의 가능성을 제시합니다.
Future Innovative Transition (F.I.T) is an urban logistics center that was created in line with the trend of the era of logistics 4.0. It solves the problem of increasing logistics volume and traffic congestion by using the Hannam Five-Street abandoned gas station, maximizing operational efficiency through smart mobility and automation systems, and delivering necessary goods more quickly and accurately. It transforms idle space in the city into a future logistics hub and presents the possibility of new urban logistics.
info
F.I.T (Future Innovative Transition)은 물류 4.0 시대의 흐름에 맞춰 탄생한 도심형 물류센터입니다. 유휴공간이던 한남오거리 폐주유소를 활용해 물류량 증가와 교통 혼잡 문제를 해결하며, 스마트 모빌리티와 자동화 시스템을 통해 운영 효율을 극대화하고, 필요한 물품을 더욱 신속하고 정확하게 배송합니다. 도심의 유휴 공간을 미래형 물류 거점으로 변모시키며, 새로운 도시 물류의 가능성을 제시합니다.
Future Innovative Transition (F.I.T) is an urban logistics center that was created in line with the trend of the era of logistics 4.0. It solves the problem of increasing logistics volume and traffic congestion by using the Hannam Five-Street abandoned gas station, maximizing operational efficiency through smart mobility and automation systems, and delivering necessary goods more quickly and accurately. It transforms idle space in the city into a future logistics hub and presents the possibility of new urban logistics.




















































