조민주
Minju Jo

허지윤
Jiyoon Heo


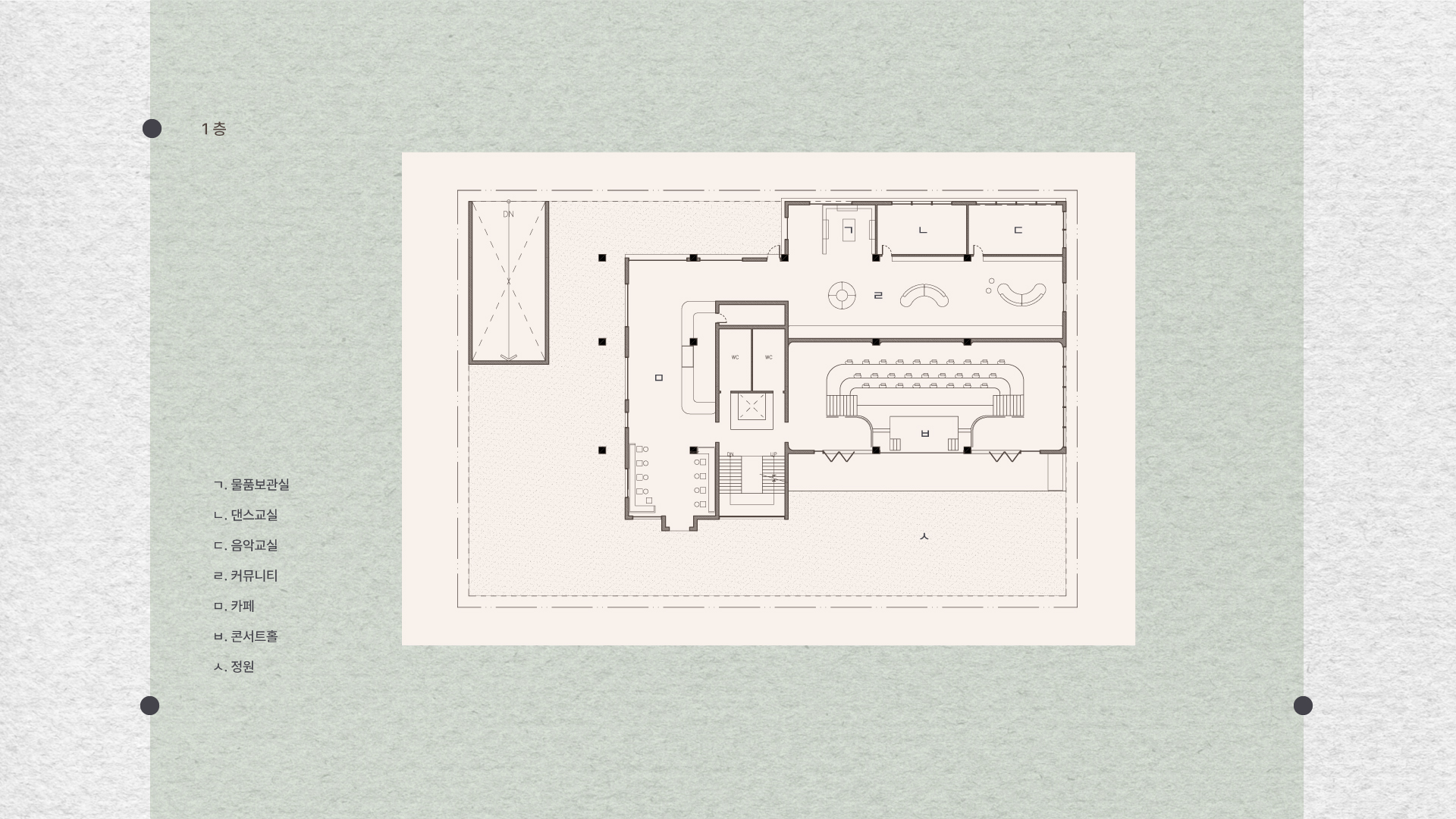
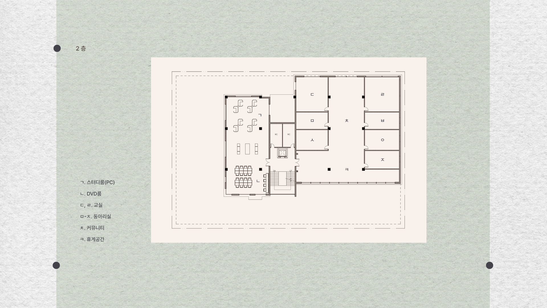
好好㰤㰤(호호하하) : 오팔세대 덕질문화플랫폼

‘호호하하’는 오팔세대가 자신만의 취향을 발견하고, 그 과정을 즐길 수 있도록 설계된 공간입니다. 단순한 목적이 아닌, 다양한 분야를 탐험하며 취향을 찾아가는 여정에 중점을 둡니다. 마치 놀이처럼, 참여자는 이 공간에서 자신의 정체성을 깊이 탐구하고 새로운 기쁨을 발견할 수 있습니다. 공간은 자연스러운 배경이자 길이 되어, 참여자들이 각자의 취향을 탐색하고 즐기는 과정을 돕습니다.

‘HOHOHAHA’ is a space designed for the “opal generation” to explore and enjoy their unique tastes. Rather than focusing on a single goal, it emphasizes the journey of discovering personal preferences across various areas. Like play, this space allows participants to delve into their identity and uncover new joys. The space itself serves as a natural backdrop and pathway, supporting participants in the enjoyable process of exploring and embracing their own tastes.

info

好好㰤㰤(호호하하) : 오팔세대 덕질문화플랫폼

‘호호하하’는 오팔세대가 자신만의 취향을 발견하고, 그 과정을 즐길 수 있도록 설계된 공간입니다. 단순한 목적이 아닌, 다양한 분야를 탐험하며 취향을 찾아가는 여정에 중점을 둡니다. 마치 놀이처럼, 참여자는 이 공간에서 자신의 정체성을 깊이 탐구하고 새로운 기쁨을 발견할 수 있습니다. 공간은 자연스러운 배경이자 길이 되어, 참여자들이 각자의 취향을 탐색하고 즐기는 과정을 돕습니다.

‘HOHOHAHA’ is a space designed for the “opal generation” to explore and enjoy their unique tastes. Rather than focusing on a single goal, it emphasizes the journey of discovering personal preferences across various areas. Like play, this space allows participants to delve into their identity and uncover new joys. The space itself serves as a natural backdrop and pathway, supporting participants in the enjoyable process of exploring and embracing their own tastes.

好好㰤㰤(호호하하) : 오팔세대 덕질문화플랫폼

조민주

허지윤