













































최서연
Seoyeon Choi
허강민
Kangmin Heo
이음새
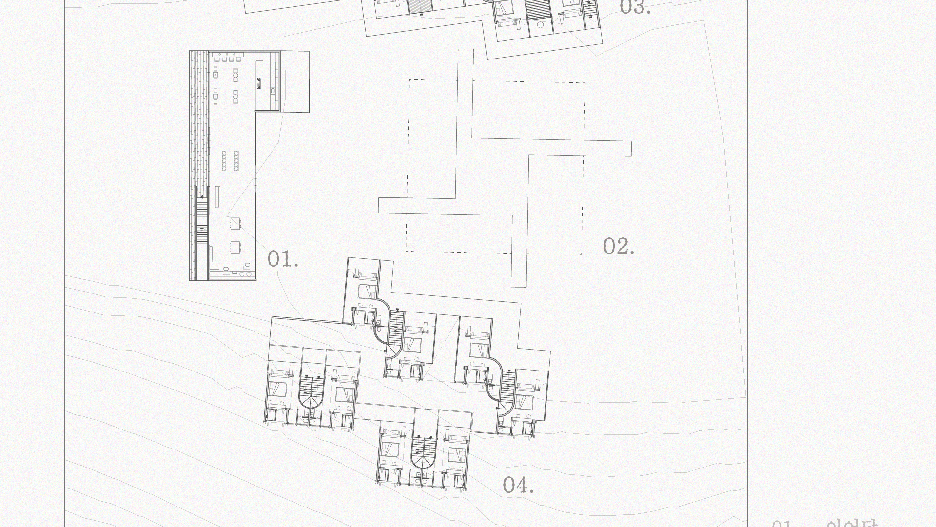
인구 감소와 수도권 과밀화 현상이 심화되는 지금, 지방은 실제로 소멸하고 있다. 그중에서도 속도가 가장 빠른, 섬이라는 장소는 우리에게 어떤 의미여야 할까. 인구 감소의 시대에 섬의 새로운 문화를 만들어내는 단기 체류형 집합 주거시설을 통영 매물도에 제안하고자 한다.
Now that the population decline and overcrowding in the metropolitan area are intensifying, the provinces are actually disappearing. Among them, what should the fastest place, the island, mean to us? In an era of population decline, we would like to propose short-term group residential facilities to Tongyeong Maemuldo that will create a new culture on the island.
info
인구 감소와 수도권 과밀화 현상이 심화되는 지금, 지방은 실제로 소멸하고 있다. 그중에서도 속도가 가장 빠른, 섬이라는 장소는 우리에게 어떤 의미여야 할까. 인구 감소의 시대에 섬의 새로운 문화를 만들어내는 단기 체류형 집합 주거시설을 통영 매물도에 제안하고자 한다.
Now that the population decline and overcrowding in the metropolitan area are intensifying, the provinces are actually disappearing. Among them, what should the fastest place, the island, mean to us? In an era of population decline, we would like to propose short-term group residential facilities to Tongyeong Maemuldo that will create a new culture on the island.












































