


























김예은
Yeieun Kim
윤수빈
Subhin Yoon
TUTUS CLEMENTIA
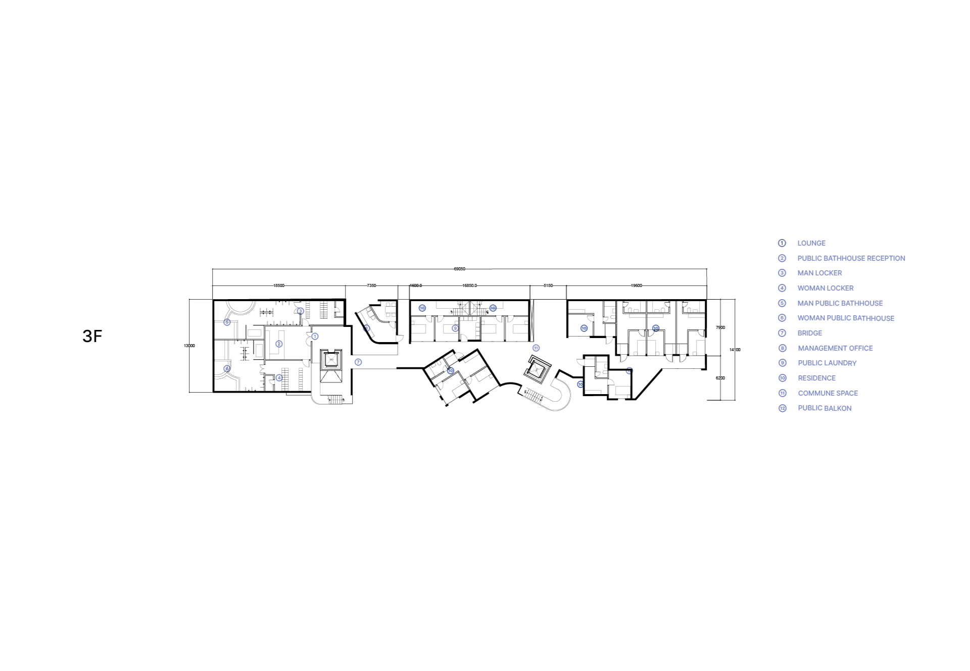
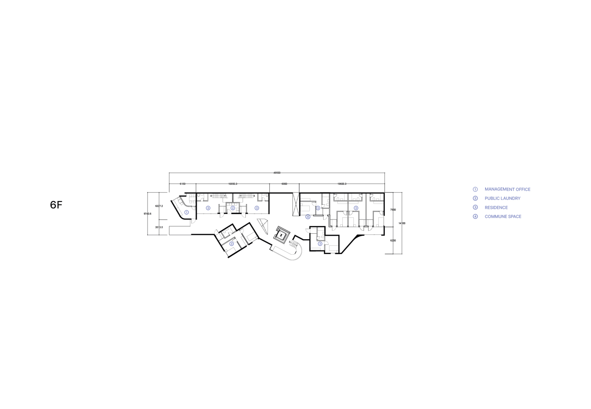
TUTUS CLEMENTIA는 ‘자립준비청년’의 주거 문제와 커뮤니티 욕구를 해결하기 위해 레지던시와 상업 시설을 결합한 공간입니다. 다양한 규모의 보이드 공간은 자연스럽고 유기적인 커뮤니티 형성이 이루어지도록 합니다. 또한 샤워실, 오피스, 칸틴 등 필수적인 부대 시설을 배치하여 일상에 필요한 요소들을 충족시키며, 거주자들에게 소속감과 자립심을 키워주는 환경을 제공합니다.
TUTUS CLEMENTIA is a space that combines residency and commercial facilities to address the housing issues and community needs of “young adults preparing for independence.” The diverse void spaces are designed to facilitate the natural and organic formation of a community. Additionally, essential amenities such as showers, offices, and a canteen are incorporated to meet daily necessities, providing an environment that fosters a sense of belonging and autonomy for the residents.
info
TUTUS CLEMENTIA는 ‘자립준비청년’의 주거 문제와 커뮤니티 욕구를 해결하기 위해 레지던시와 상업 시설을 결합한 공간입니다. 다양한 규모의 보이드 공간은 자연스럽고 유기적인 커뮤니티 형성이 이루어지도록 합니다. 또한 샤워실, 오피스, 칸틴 등 필수적인 부대 시설을 배치하여 일상에 필요한 요소들을 충족시키며, 거주자들에게 소속감과 자립심을 키워주는 환경을 제공합니다.
TUTUS CLEMENTIA is a space that combines residency and commercial facilities to address the housing issues and community needs of “young adults preparing for independence.” The diverse void spaces are designed to facilitate the natural and organic formation of a community. Additionally, essential amenities such as showers, offices, and a canteen are incorporated to meet daily necessities, providing an environment that fosters a sense of belonging and autonomy for the residents.

























